This is the result of being stuck inside for months on end.
For a practice trying to cut its teeth, the home is usually where we start. Putting the walls, windows, floor tiles, and cabinets you look at on a day to day basis on wax felt like the best exercise to get in the groove.
For a practice trying to cut its teeth, the home is usually where we start. Putting the walls, windows, floor tiles, and cabinets you look at on a day to day basis on wax felt like the best exercise to get in the groove.







A work-in -progress. Rethinking housing with some exisiting models.
How far can a shotgun house stretch? What ways could a unit multiply and and grow by copying itself? An exercise of making many from one. Collectives are cool.
How far can a shotgun house stretch? What ways could a unit multiply and and grow by copying itself? An exercise of making many from one. Collectives are cool.






Taking a request made in passing and trying to make something real of it.
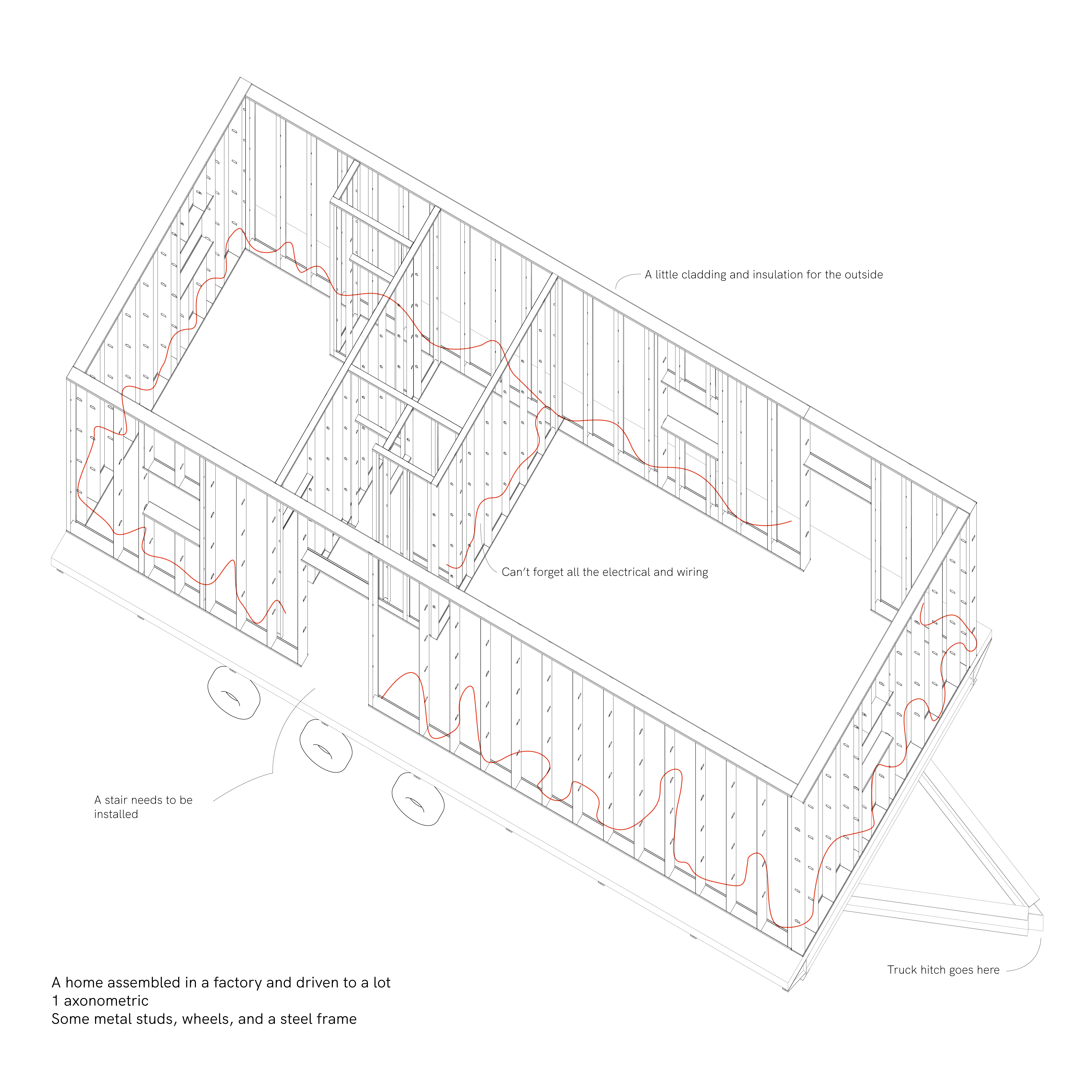
The Garden is thinking of the ways in which a home made in a factory could be modified to give it a different texture and feel. A quick test to see how far the language of mass production can bend before it morphs into something else.
The Garden is thinking of the ways in which a home made in a factory could be modified to give it a different texture and feel. A quick test to see how far the language of mass production can bend before it morphs into something else.





for the folks who were ever curious about ditching their tables from ikea for surfaces you can build from materials picked up at Home Depot & delivered by Amazon.







a collection of pairs
a drawing and an image
just some explorations
behind the materials and assemblies we use to design the constructed world around us.
a drawing and an image
just some explorations
behind the materials and assemblies we use to design the constructed world around us.
Filed under:
drawing,
mockups,
design
drawing,
mockups,
design



